作者:三明治
2017-10-09·阅读时长8分钟

文:李正弈棋,庾慧景,李耀武
供图:王天羽,庾慧景
L从未想到过,离家太久,回家,便是一种对生疏的熟络,对熟络的生疏。
小火车开通了,然而铁路两旁我摘过荷花的田野,成为了绿化风景带;小桂湖开发了,而湖周围我钟爱的米线和烧豆腐,成了法式风格的商业街;小城繁华而新,但承载那些童年偷酸角、放鞭炮、躲猫猫的记忆,拥有棉花糖味道的街道和老屋,也消失了。
于是怀着一种在演员卸妆间歇,抢在其登台以前,努力搭个话,喊声老朋友的心情,我闯入了那些街巷老屋的“休息间”,了解这些亲爱的老友,未曾讲述过的故城。

沈家大院,坐落在文庙社区小西庄南端46号。仅看不甚高大的正门,你不会想到这是一间占地上千平方米的“大院”,因为子孙的分居变卖,政府介入分房,一间“大院”,才逐渐沦落为一纵两进院的老屋。
跨进有些颓败的大门,在或明或暗的走道中拐了几个弯后,就到了前厅。格扇门的格心不是简单的直棂条,而是富有装饰意味的几何方格,配有寿字纹棱花,裙板上也浮雕有瑞兽,贴有金箔,中绦环板上是文房四宝。

一进入天井,屋里传出《神医喜来乐》的主题曲,探头往屋里一看,看电视的沈大爷躺得很深,以至于门外喊他没有反应,进到他的面前,才反应过来。我需要用超过电视的音量,才可以与他交谈,而一谈起这老屋,他脸上显现出抑制不住的自豪,也有不经意显露的感叹:“当年这间院大得很!”
原来这个沈家是明朝“江南第一富豪”沈万三的后人,流落到云南后,在个旧开锡矿发家致富,买下了这座大宅子。
从同治年间开始,在沈大爷祖辈父辈那几代,大院是有九进屋的,那时候自己还可以进自家私塾读四书五经。
清末光绪年间,沈家嫁女,还请了整个建水城内的人吃饭,十分气派,也是在那次婚宴上,日后发动“中国第一次工人起义”的周云祥,出于义愤,与调戏小脚妇女的清兵发生械斗,埋下了反清的种子。
从西庄荒地村到建水城内,沈家的基业因走马帮而起步,因办锡矿而兴盛。甚至于城西一带因为沈家的兄弟两人,家业巨大,人丁兴旺而称为“小西庄”。

“但是沈家人只会办矿,矿产被合并了,就没有了经济来源,大多数人都去云锡公司当工人了。”沈大爷感叹到,因新中国成立,私营矿井所有制的变更,沈家无法适应角色的转变,家道逐渐没落。
而所有这些辉煌与传奇,只有天井里那口刻有行书诗字的精美防火池得以见证。夕阳下,字迹尤为清晰。沈家大院,见证了当年汉族来到建水这块蛮荒的少数民族地区的繁荣与衰落,也目睹了这座小城的历史沧桑。
有时候,一座老宅,牵出的不只是一个家族的故事,还可能是不同民族间的关系。岁月中,一座供奉和祭祀祖先的宗祠,也可能变为充满生活气息的民居。
“作为黄家的后人,能领着工资守在本家宗祠,居住在这里,是最好的结果了!”年过半百的黄兴黎叔叔,笑得非常灿烂,岁月在脸上留下的只有鱼尾纹,在向游客解说黄氏宗祠时,总是竭尽所知,兴致勃勃。而更令人惊奇的是,这所老屋所承载的历史故事。
清咸丰元年(1856年)建水县汉绅和回民因银矿产权归属问题,发生争执。作为矿产产权最为集中的西庄人,出于报复,推举潘德、黄殿魁为首领,勾结地方政府,带人进城,搜杀回民,酿成民族械斗惨剧。幸免者逃奔回民聚居地回龙寨,组织反抗队伍,并推举马如龙为首领,开启了滇东南地区第一次回民武装反清起义。
战火一路烧到昆明城下,而作为挑起事端的西庄古镇,也因此毁于一炬,所以在西庄的村落里,基本都是咸丰年后重建的古建筑,黄氏宗祠也不例外。
直至光绪初年(1876年)战事平息,时任族长黄鸿延(音译)组织黄氏族人重建了宗祠主殿。因当时慈禧太后主政为尊,主殿斗拱与横梁上雕设绘制的龙凤图案,都是凤在上,龙在下。或许是宗祠的重建带来了祖先的眷顾,从此族人人才辈出,商矿兴旺。光绪十五年(1889年),黄氏族人黄凤祥考中举人,从此黄家在政界也有了一席之地。
随着1912年黄凤祥任命为富滇银行第一任总经理,黄家家势达到顶峰,宗祠也迎来了它的第二次大修,便成为了现在两横三纵的格局。
“所以你看,门口那对石狮子,普通人家包括贪官是千万不能用的啊!家势弱的,反而被厉气所克,只有家势旺的人家才能起到镇风水的作用。”黄叔骄傲地说:“你抬头看,门口这儿也还有故事。”
新中国成立的头几年里,宗祠仍保留有黄氏族人议事、教育、祭祀和推举族长的功能,同时也被用作新房小学,提供给附近的孩子上学。
黄叔也是在这里毕业的,所以每次遇到老校友回来,他们都会聊一聊当时小学里面发生的趣事。而几乎所有老校友都依稀记得正门上应该有一块写着“黄氏宗祠”的牌匾,但金字牌匾上留有几道特别明显的划痕。
牌匾在文革时期被毁了,但那几道划痕的来历,老校友们都知道。那是某同学在门口站岗值日时,用竹枝挑出来的划痕。本来,老师觉得他能主动承认错误已经足够了,不准备过度处罚,但宗祠的老族长却不同意,硬是要求严厉惩罚,让同学们引以为戒。于是,这位同学按要求在屁股上挨了学校里每位同学一鞭子,用的,就是他挑坏牌匾的竹枝。
有趣的是,2014年的某天,黄叔再次聊起牌匾的故事时,听众突然乐开了:“你说的当事人就在这儿啊!来来来,让他过来讲讲!”于是,牌匾疑案才偶然得到了谜底。
当时的学校还比较传统,教学内容里面还包括有书法和绘画。为了控制毛笔里的水分,蘸墨之前,都會用毛笔在纸团上试笔吸水,而被水浸湿的纸浆团,就是同学们课后用以娱乐,相互投掷的武器。
也不晓得是哪个调皮鬼在牌匾上扔了一团纸浆,恰好被值日的这位老学长发现了,于是,他就用竹枝把纸团清理下来,没想到一不小心留下了划痕。而他觉得,事情都已经这样了,也没办法查出是谁扔的纸团,也很有可能不止一个人受到牵连,而且说出来还会被误以为撒谎找借口,所以就干脆直接承认了错误,或许还能得到老师的原谅。最后虽然挨了打,但他自己知道出于好意,也免了其他同学的惩罚,所以没有再向老师辩解。
在场的人听了都十分感慨,原本出于善意的举动居然遭到了误解,事实的澄清也等了这么多年。黄叔也感动于老学长的为人厚道,诚实勇敢,所以从那时起,每当聊起牌匾的故事他都要“平反”这桩碰巧查清了的“冤案”。每讲一次,都是重温老屋生平的乐事,也正是像这样的故事,让老屋显得格外亲切可爱。

“我住在这儿,吃在这儿,尽管只是一个人住,但并不觉得孤独,相反,我觉得这里就是我的皇宫!主殿旁那一块地就是我的花园,自在得很!”黄叔如此评价他的居室,空荡荡的房间里只有一个衣柜、一张床和几件厨具。
阳光下,听到他这么说,我突然觉得心里也有了温暖,尽管只是作为看守的人,他就是这个家的主人,带着客人去欣赏他自己日常的自豪。
他会热切地告诉你匾托的桃子和石榴形状,寓意着长寿健康,多子多福;他会兴奋地告诉你左纵房为阳面,右纵房为阴,因此两边石础的刻法左边是阳刻,右边是阴刻,普通人根本发现不了;他会细致地告诉你,暗八仙和明八仙的区别,蝙蝠衔着太阳落在海上寓意着福如东海;他会声情并茂地给你描述石缸上刻的空城计和白蛇传的故事和场景……

这不禁让人感慨,无论是尘封遗落了多久,毁坏没落了几次的建筑,只要他还有自己庇护的孩子去承载曾经的记忆和美好,就有理由去相信它就是活着的,而且会一直活下去将自己展现给别的文化,而这的确就是“最好的结局”。
建水古民居,给予了L一个留下了往昔,能称之为家的故城。
我是土生土长的建水人,建水很大,不敢说就是我的故乡,我的故乡很小,仅建水城之一隅。
俗话说:“一方水土养一方人。”徜徉于建水古城的大街小巷,穿梭于建水的古院落之间,随处可捡拾饱含沧桑的历史痕迹,这里的人被历史的气息所渲染,酿就了他们的淳朴,从容,随和,扎根于脚下的土地一辈子勤勤恳恳。
建水的古建筑民居同这片土地上的人们一样,给人散发一种温柔、随和的高贵气质,我想这一定存在着某种来自建水古民居与人之间的一种相互渗透,相互影响的一种有渊源的关系。
一个很幸运的机会,让我与建筑这一门学问结缘,大三下学期有一门所修的关于云南传统民居建筑测绘的课程,测绘选地也刚好就在建水。跟着研究古建筑的老师入驻建水,进行了为期三周的测绘学习。第一次从专业的角度来看家乡,那种感觉奇妙而深刻。
合院建筑是中国最为普遍的一种建筑类型,发源于中原地区,随中原文化向四周地区渗透、扩展而遍及大江南北。云南随着与中原地区交往的扩大以及大量汉族移民迁入,中原建筑文化也逐渐在云南扩散,并不同程度地与云南各民族的需要和传统相结合。
建水的传统民居形式风格与中原汉式合院有一脉相承的渊源关系,与云南地域其他合院民居相比,更加具有中原汉文化影响和渗透的印记。

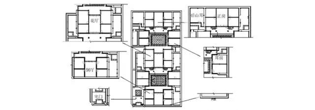
同时,建水民居又具有较高的社会性和地域性,这种社会性体现在它的细节的各个方面,建水的宅院与其主人的身份地位有着密不可分的联系,比如院落格局,进深与面阔尺寸,门楼,檐口或柱坊的雕花,入户大门的装饰、台阶数目及门前摆放的兽物,门槛的高度等。

而空间大小、实虚、疏密、参差、阴阳等无不反映着建水民居空间节奏、秩序上的动势和活力,“三间六耳下花厅”就是很好的印证。由于受到儒家文化的影响,建水民居中“礼教”思想的痕迹很重,如“男子昼无故不处私室,妇人无故不窥中门,有故出其中门必掩蔽其面”。这也是第一次,发现儿时跨过无数次的“中门”,原来如此讲究。
最妙的是花厅,加上双进路线的设置,使各部分相对独立的使用空间联系方便、自然,互不干扰,既充分体现“礼”在家庭生活空间上的影响,又巧与精神空间的开拓相和。花厅又一般是家中读书人待的地方,细细想来,这无不与“滇南邹鲁,文献名邦”有着密切的关系。
民居的外部形式风貌也呈现出建水当地的特色。后檐墙和山墙面的立面都分为三段式。自下而上分别是底部用灰色条石砌筑的勒脚,中段是图砌筑的墙体,外面粉刷有当地土黄色面浆。在上段的处理上,山墙采用本地产的大青砖饰面(为“金包玉”的做法)。三种质地、肌理及色彩的不同组合运用,使各个外墙体交接有序共成一体。
建水合院民居屋顶以人字形双坡硬山顶为主,通过房屋纵横组合形式的多样性和屋脊线条的交错变化来获得丰富的天际轮廓线。黄墙、青砖、青瓦面“一青、一黄”两大基本色调,就是从儿时至今我们对建水老民居最深的印象。

青黄之间配上一棵芭蕉树,意境就出来了。偶尔在老街巷中,还能看到黄墙上画着某种类似图腾的图案,也许是居住其中的少数民族人家的古老信仰吧。
建水的古民居就像一个个迷宫,从小时候的捉迷藏到如今的测绘和走访,一个转角,一扇窗棂,都充满未知和惊喜。它们明明是看得快发腻的老古董了,我们却在这种熟悉中感到陌生和新奇,但这种感觉又和其它地方的古民居带给我们的新鲜感完全不同,似是初相识,又似故人重逢。原来,故乡的民居和别处是不同的。
注:文中“建水合院式民居构成元素”和“建水合院式民居组合元素”二图引用自《建水古城传统民居修缮指导手册》,建水县住建局昆明理工大学建筑与城市规划学院编


发表文章84篇 获得2个推荐 粉丝1732人
以文字和故事为核心的文创品牌,非虚构生活写作孵化平台。
现在下载APP,注册有红包哦!
三联生活周刊官方APP,你想看的都在这里